︎
YEJIN
YOON
Interior Designer based in Vancouver BC.
(Completed)
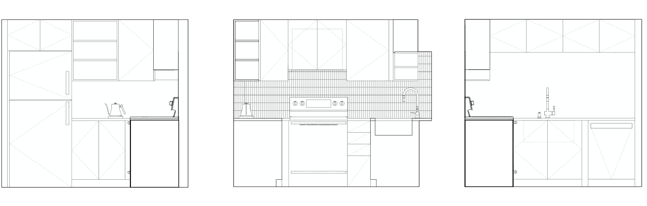
Super Normal
KITCHEN DESIGN — RENOVATION
Design. Alvin & Yejin
Photos. Alvin
Illustration. Yejin
ARCHITECTURE
&
GRAPHIC DESIGN
ARCHITECTURE
&
GRAPHIC DESIGN